SAC Treschhütte
Gurtnellen
Der in vorfabrizierter Holzbauweise ausgeführte Anbau erweitert die bestehende Hütte auf eine einfache und selbstverständliche Weise.
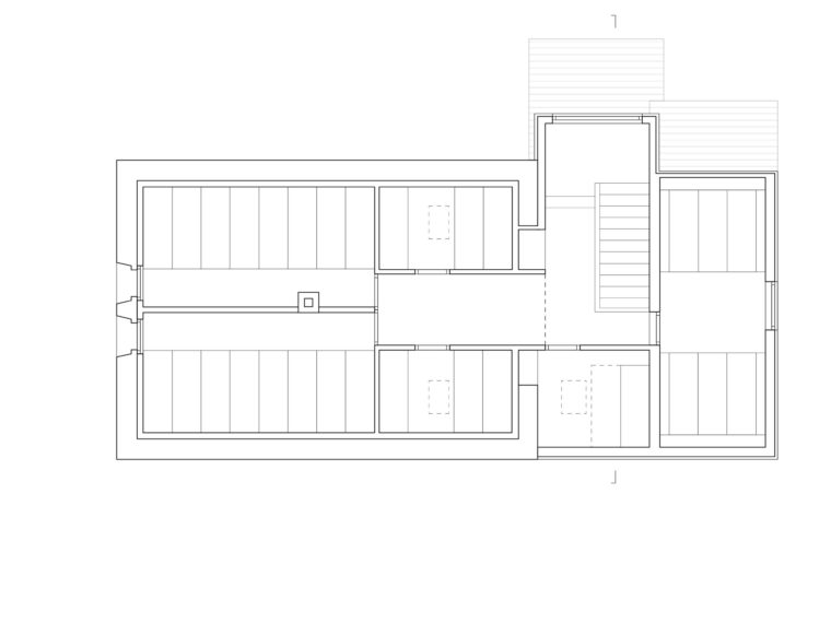
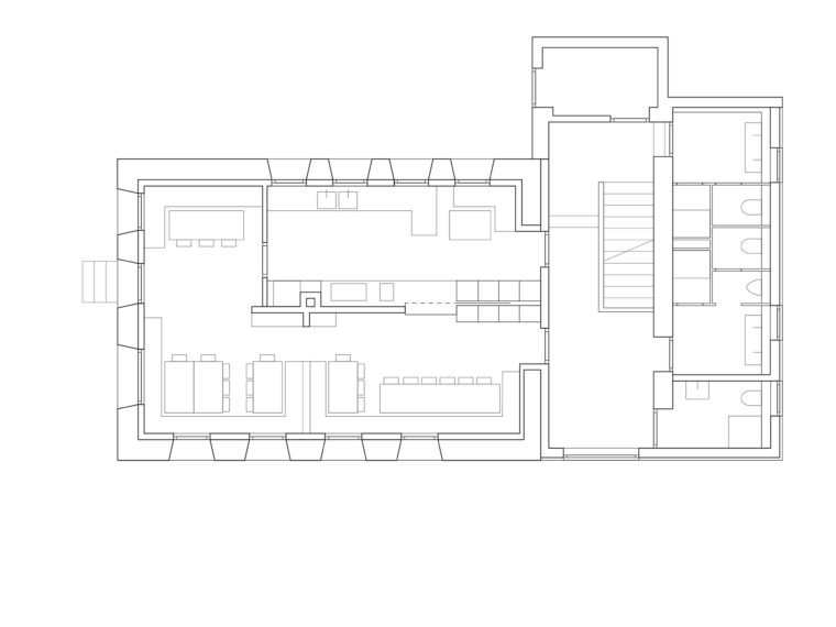
Die Treschhütte ist die tiefst gelegene SAC-Hütte und besticht durch ihre Einfachheit und ihren Charme. Das wunderschöne Tal mit seinem wilden Bach zieht viele Familien an. Mit dem Anbau Nord konnte die Sektion am Albis gleich mehrere Ziele erreichen. Die Treschhütte, welche 32 Übernachtungsplätze bietet, ist noch familienfreundlicher geworden und bietet mehr Komfort. Die bestehenden Schlafräume wurden durch kleine Räume ergänzt, die Schlafplätze sind grosszügiger angelegt, zwei Duschen wurden eingebaut und die Toiletten in das Gebäude integriert.
Bauherrschaft
SAC am Albis
Zeitrahmen
2010 – 2012
Bausumme
900‘000 CHF
Auftrag
Direktauftrag
Architekt
Eglin Schweizer Architekten AG
Entwurf: Martin Eglin
Planerteam
Heyer Kaufmann Partner Bauingenieure, Baden
Fotograf
Thomas Aus der Au
Jean-Pierre Hauser
Eglin Schweizer Architekten AG
Gebäudevolumen SIA 416
800 m3
Geschossfläche SIA 416
335m2
Standort
Im Fellital bei Gurtnellen (UR), auf 1475m Höhe

Die Verkleidung der Holzkonstruktion mit Rheinzink-Metallplatten bietet einen optimalen Witterungsschutz und nimmt die Struktur des Bruchsteinmauerwerkes auf. Zusammen mit dem neuen Blechdach erscheint das Gebäude als neues Ganzes.

Eingangsgeschoss
Der Anbau ermöglicht einen Schuh- und Technikraum auf der Ebene des Eingangsgeschosses. Der Nachhaltigkeitsgedanke spiegelt sich im Energiekonzept des Gebäudes wider. Das Abwasser wird nun in einem Drei-Kammern-Tanksystem gesammelt, welches Flüssig- und Feststoffe voneinander trennt. Um für die Küche und die Duschen warmes Wasser zu erzeugen, konnte ein ökologisches Energiekonzept verwirklicht werden. Mit dem in der Umgebung der Hütte reichlich vorhandenen Holz wird ein Kochherd betrieben, der zusammen mit den Wasserkollektoren auf dem Dach das Wasser über einen 900- Liter-Speicher im Keller erwärmt.

Innerhalb von fünf Monaten wurden mittels Heli- Rotationen unzählige Tonnen Material ins Fellital geflogen und die Bauleitung hatte zeitweilig bis zu 15 Arbeiter auf der engen Baustelle zu koordinieren. Die grösste Herausforderung war dabei das im Frühsommer unsichere Wetter, da die Betonierarbeiten und die Holzbaumontage direkt auf der Baustelle erfolgten.












