Schulhaus Brühl
Gebensdorf
Die Schulanlage wird durch zwei dreigeschossige Bauten erweitert, welche sich in Dimension und Setzung an den bestehenden Bauten orientieren und einen neuen Pausenplatz aufspannen.
Die kompakte und übersichtliche Organisation im Innern des Schulhauses manifestiert sich in dem „Lernwerkstätten-Charakter“ durch eine direkte sinnliche und haptisch erlebbare Materialisierung und Architektur.
Bauherrschaft
Gemeinde Gebensdorf
Zeitrahmen
2017
Bausumme
18 Mio. CHF
Auftrag
Selektiver Projektwettbewerb
Architekt
Eglin Schweizer Architekten AG
Entwurf und Projektleitung: Martin Eglin
Planerteam
MWV Bauingenieure AG, Baden
Leimgruber Fischer Schaub, Ennetbaden
P. Keller + Partner AG, Elektroplaner, Baden
Steigmeier Akustik & Bauphysik GmbH, Baden
SKK Landschaftsarchitekten, Wettingen
Bilder
Eglin Schweizer Architekten AG
Gebäudevolumen SIA 416
20’200 m3
Geschossfläche SIA 416
5’400m2
Standort
Friedhofweg, 5412 Gebenstorf

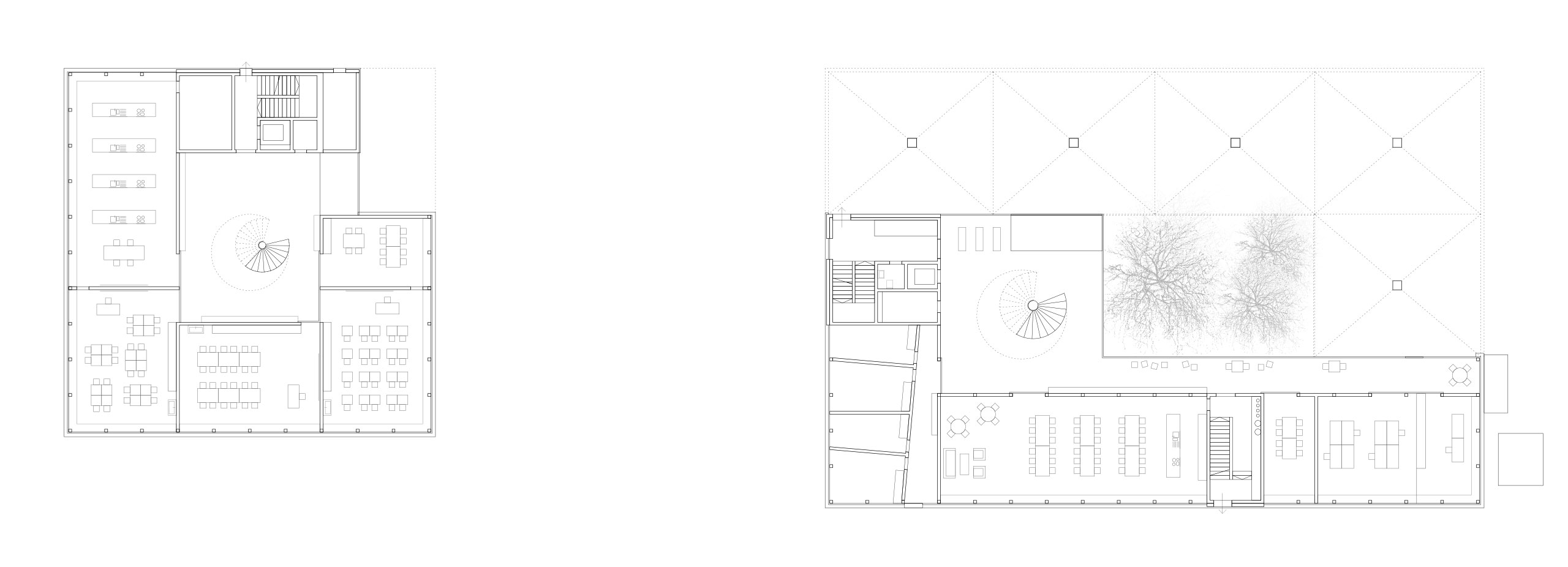
Der begrünte Innenhof bildet das identitätsstiftende Zentrum des Gebäudes und ermöglicht eine optimale Belichtung.

Aufgrund der massiven räumlichen Vergrösserung der Schulanlage, welche im Endausbau ca. 750 Schüler/-innen umfassen soll, ergibt sich auch ein grosser Bedarf an nutzbaren Aussenflächen und gedeckten Aussenräumen. Da der bestehende Schulhausplatz diesen Anforderungen nicht hinreichend gerecht wird und durch die Neubauten Aussenflächen verloren gehen, liegen bei der ersten Etappe Brühl 3 die Unterrichtsräume im 1. und 2. Obergeschoss, um einen grossen gedeckten Aussenraum zu schaffen. Die neue Platzfläche liegt diagonal in der Verlängerung der südöstlichen Ecke des bestehenden Schulhausplatzes und verbindet die beiden Schulhäuser Brühl 3 räumlich grosszügig miteinander und mit dem bestehenden Pausenplatz. Das Schulhaus der zweiten Etappe bildet den Abschluss dieser neuen, grosszügigen Platzfläche auf Augenhöhe.

Der neue Schulhausplatz mit seinen grosszügig gedeckten Flächen erweitert die aussenräumlichen Qualitäten der Gesamtanlage und wird zum vielfältig nutz- und bespielbaren Erschliessungs- und Aufenthaltsbereich

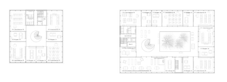
Grundriss Erdgeschoss
Über den gedeckten Eingangsbereich erreicht man die mittlere Erschliessungszone, von der die gewendelte Treppe über den kreisförmigen Luftraum in die Obergeschosse führt. Durch den Lichthof fällt viel Tageslicht in den zentralen Erschliessungsraum, dieser wird vielfältig nutzbar. Im Erdgeschoss liegen die Lehrer- und Schulleitungszimmer sowie die separat ausserhalb der Schulzeiten zugänglichen Musikräume.

Die in einem runden Luftraum stehende skulpturartige Wendeltreppe verbindet die Geschosse miteinander.

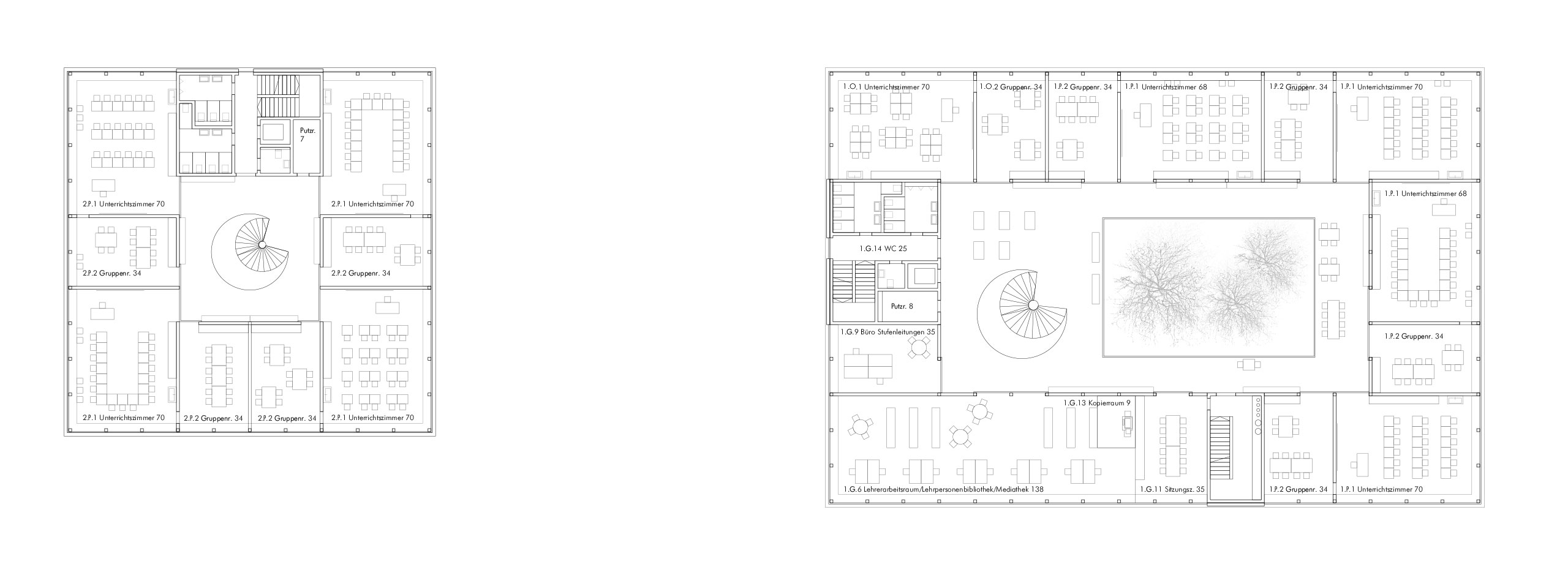
Obergeschoss
Die Obergeschosse mit den Unterrichts- und dazwischen liegenden Gruppenräumen zeichnen sich durch eine ausgezeichnete Belichtung und vielfältige Nutzbarkeit im Erschliessungsbereich aus. Über das anliegende Treppenhaus erreichen die Lehrpersonen auf direktem Weg ihre Arbeitsräume, Bibliothek, Mediothek und Sitzungszimmer. Duch die gewählte Gebäudeform können rein nordbelichtete Räume auf ein Minimum reduziert werden.

Statisches Konzept
Die Pilzdecken sind über den Hauptstützen ca. 90 cm dick und verjüngen sich gegen aussen hin auf lediglich ca. 40 cm. In den Obergeschossen überspannen die Decken eine Breite von max. 9.5 m. Gelagert werden diese Decken auf rundherum verlaufenden Aussenstützen (Fassade) und Innenstützen (zwischen Erschliessung- und Zimmerschicht). Neben den vorfabrizierten Betonstützen 20/20cm übernehmen die beiden Treppenkerne ebenfalls ein Teil der direkten, vertikalen Lastabtragung. Zudem haben sie für das ganze Gebäude eine aussteifende Wirkung in die horizontale Richtung.





